Un ecosistema de productividad y bienestar
En Aikon Global Center, los espacios de trabajo sostenibles están concebidos para impulsar la productividad y la sinergia entre empresas y profesionales. Con un diseño adaptable y tecnología inteligente, cada ambiente favorece la interacción, el confort y la evolución continua, alineándose con los desafíos del mundo corporativo moderno.

Espacios Disponibles
Los espacios de alquiler en AGC han sido diseñados para inspirar, conectar y transformar la manera en que las empresas viven su día a día. Cada planta representa un concepto alineado con nuestra filosofía de crecimiento y evolución continua.
¿A qué planta vas? Haz clic en cada número y visita el edificio.
Nivel 6: Zenith
La cima del bienestar. Un espacio concebido para disfrutar, inspirarse y ver el futuro con claridad.
-
Uso principal: Terraza, restauración, eventos, miradores hacia Sierra Nevada y la Alhambra, sala de usos múltiples compartimentable.
-
Zonas verdes/aire libre: aire libre 1.550 m², 510 m² de zonas verdes, lámina de agua de 70 m²
-
Datos técnicos: 700 m² útiles (interior)
Nivel 5: Horizonte
Las decisiones más importantes requieren la mejor perspectiva. Un espacio donde la visión estratégica cobra sentido.
-
Uso principal: Oficinas | Dos núcleos de comunicación (escalera y ascensor)
-
Planta en bruto: Plano para propuesta de distribución para 2 empresas y 2 salas de espera. Máximo de compartimentación: 5 empresas
-
Zonas verdes/aire libre: 400 m² incluidas zonas verdes
-
Datos técnicos: 2.850 m² construidos / 2.695 m² útiles / 1.752 m² oficinas
Nivel 4: Evolución
Diseñado para quienes buscan crecer en un entorno de calma y exclusividad. Un refugio para la creatividad y la concentración.
-
Uso principal: Oficinas | Dos núcleos de comunicación (escalera y ascensor)
-
Planta en bruto: Plano con propuesta de distribución para 2 empresas y 2 salas de espera. Máximo de compartimentación: 5 empresas.
-
Zonas verdes/aire libre: Dos terrazas. 320 m² con zonas verdes
-
Datos técnicos: 2.200 m² construidos / 2.125 m² útiles / 1.227 m² oficinas
Nivel 3: Sinergia
El alma colaborativa del edificio. Espacios que fomentan el encuentro y la creación conjunta.
-
Uso principal: Oficinas |Dos núcleos de comunicación (escalera y ascensor) | Cantina de 115 m², zona común con terraza para quienes trabajan en el edificio, con zona office para calentar comida, máquinas de vending…
-
Planta en bruto: Plano con propuesta de distribución para 2 empresas y 2 salas de espera. Máximo de compartimentación: 6 empresas
-
Zonas verdes/aire libre: 530 m² incluidas zonas verdes.
-
Datos técnicos: 2.530 m² construidos / 2.384 m² útiles / 1.196 m² oficinas
Nivel 2: Visión
El punto donde las ideas toman forma. Un entorno diseñado para la productividad y la inspiración.
-
Uso principal: Oficinas | Dos núcleos de comunicación (escalera y ascensor)
-
Planta en bruto: Plano con propuesta de distribución para 3 empresas y 2 salas de espera. Máximo de compartimentación para 6 empresas
-
Zonas verdes/aire libre: Dos terrazas. 600 m² con zonas verdes
-
Datos técnicos: 2.897 m² construidos / 2.800 m² útiles / 1.730 m² oficinas
Nivel 1: Dinámica
El latido de la actividad empresarial. Un espacio vibrante donde la innovación y el comercio se encuentran.
-
Uso principal: Locales comerciales | Oficinas flexibles -zonas de trabajo- | Coworking | Local comercial (nivel 1 conectado con nivel 0, gimnasio) | Local comercial | Acceso desde la calle | Pasarela central (comunica las dos calles, la zona oeste con la este) | Rampa accesible a planta de origen | Aparcamiento para 48 bicicletas | Local comercial (guardería)
-
Zonas verdes/aire libre: 1.230 m²
-
Datos técnicos: 3.830 m² construidos / 2.600 m² útiles
Nivel 0: Origen
El primer encuentro con el universo Aikon. Un espacio de bienvenida donde convergen personas, ideas y oportunidades.
-
Uso principal: Muelle de logística | Recepción lobby principal | Recepción secundaria | Sala de uso polivalente | Atrio multiusos | Almacén | Local comercial (posible gimnasio) a dos niveles conectado a la calle | Local comercial (2 cafeterías) | Local para zona comercio (market) | Local comercial (guardería).
-
Zonas verdes/aire libre: 475 m²
-
Datos técnicos: 3.968 m² construidos / 3..520 m² útiles
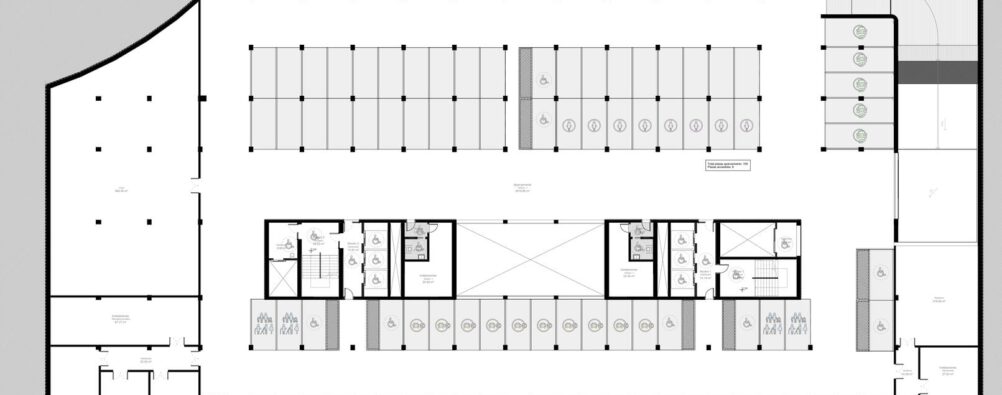
Nivel -01: Logística
El ritmo invisible del edificio. Un ecosistema que garantiza la eficiencia operativa para que todo siga en movimiento.
-
Uso principal: Aparcamiento y almacén
-
Número de plazas estándar: 109
-
Preferente mujeres:
-
Número de plazas accesibles: 8
-
Número de plazas carpooling: 10
-
Puntos de carga eléctrica: 5
-
Estación de carga en plazas accesibles: 1
-
Núcleo de aseos: 1
-
Zonas verdes/aire libre: no tiene
-
Datos técnicos: 4.317 m² construidos / 2.963 m² útiles de aparcamiento / 1.066 m² resto de usos
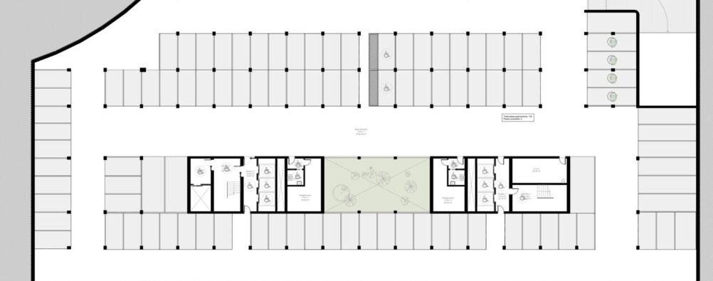
Nivel -02: Conexión
Donde la energía fluye. Espacios que conectan y optimizan la movilidad para que todo funcione en armonía. Un entorno accesible y luminoso que garantiza comodidad y seguridad en cada trayecto.
-
Uso principal: Aparcamiento
-
Número de plazas estándar: 149
-
Número de plazas accesibles: 2
-
Número de plazas carpooling: 18
-
Puntos de carga eléctrica: 5
-
Estación de carga en plazas accesibles: 1
-
Núcleo de aseos: 1
-
Zonas verdes/aire libre: 110 m²
-
Datos técnicos: 4.335 m² construidos / 3.829 m² útiles
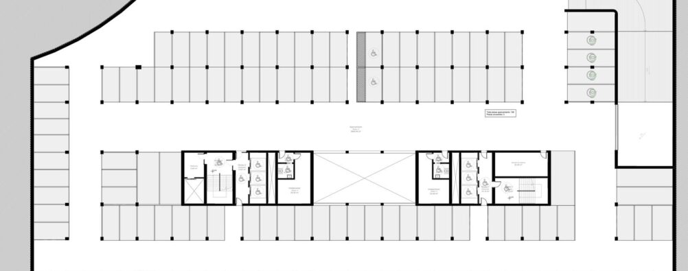
Nivel -03: Raíces
El punto de apoyo de todo lo que crecerá. Un espacio sólido y preparado para sustentar el movimiento del edificio. Diseñado con luz natural y visibilidad para potenciar la inclusividad y la seguridad de todas las personas.
-
Uso principal: Aparcamiento
-
Número de plazas estándar: 148
-
Número de plazas accesibles: 2
-
Puntos de carga eléctrica: 4
-
Estación de carga en plazas accesibles: 1
-
Núcleo de aseos: 1
-
Zonas verdes/aire libre: no tiene
-
Datos técnicos: 4.335 m² construidos / 3.829 m² útiles
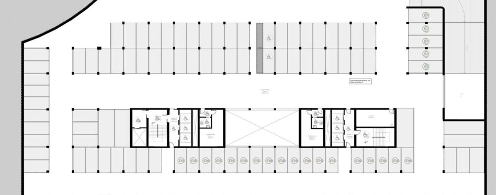
Nivel -04: Roca Madre
El origen de todo. La base sobre la que se construye el futuro. Un espacio técnico, robusto y funcional, diseñado para sostener y conectar.
-
Uso principal: Aparcamiento
-
Número de plazas estándar: 151
-
Número de plazas accesibles: 2
-
Estación de carga en plazas accesibles: 1
-
Núcleo de aseos: 1
-
Zonas verdes/aire libre: 110 m²
-
Datos técnicos: 4.463 m² construidos / 3.903 m² útiles
Sostenibilidad Arquitectónica
Un diseño pensado para el futuro
La sostenibilidad no es una opción, es una prioridad. Nuestra arquitectura ha sido concebida bajo los más altos estándares de eficiencia energética y responsabilidad ambiental, creando un ecosistema donde innovación y naturaleza conviven en equilibrio.
Construimos espacios que, además de respetar el entorno, lo potencia.



